お問い合わせ番号:769
近鉄奈良線 東生駒の物件です
沿線/最寄駅 バス/徒歩 所在地 種別
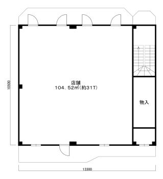
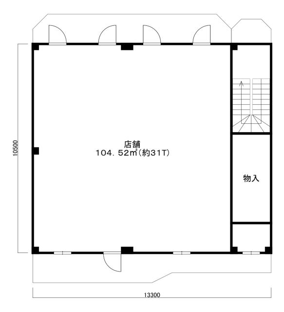
近鉄奈良線 東生駒 徒歩3分 生駒市辻町397-7 店舗
賃料 共益費 保証金/解約引 敷金/礼金 専有面積 築年数
15.4万円 0円 ―/― 15.4万円/46.2万円 104.5m2(31.46坪) 1983年4月
担当者コメント

物販・教室などいかがでしょうか。

設備

建物構造 鉄骨
何階部分/何階建 3階部分/3階建
取引形態 仲介
現況 空家
引渡 相談 

広告有効期限:2026年12月00日/最終更新日:2026年03月26日

生駒の賃貸マンション、賃貸ハイツ、
駐車場の賃貸物件は菅原住建

菅原住建

TEL.0743−74−8543

〒630-0251

奈良県生駒市谷田町876

TEL.0743−74−8543

近鉄奈良線 生駒駅北口より 約4分

菅原住建 地図